1-к квартира, 34.7 м², 2/10 эт.

1 562 000руб.

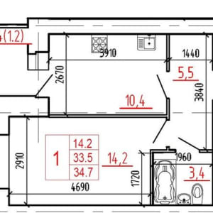
Характеристики

  • Общая площадь: 34.7 м²
  • Этаж: 2
  • Комнат в квартире: 1
  • Жилая площадь: 14.2 м²
  • Тип дома: Кирпичный
  • Площадь кухни: 10.4 м²
  • Этажей в доме: 10

Описание

Продается 1 к.к. в новом жилом комплексе «Семейный» в Зашекснинском районе на улице Монтклер д.5.

Отделка «под чистовую»: входная металлическая дверь, пол – цементная стяжка, стены отштукатурены, окна – 2-камерный стеклопакет, лоджия – 1-камерный стеклопакет, сантехника – заведены трубы в квартиру, установлены приборы учета, установлен прибор учета тепла. Квартира оборудована приборами учета тепла, электричества, воды.

Отделка «под ключ»: обои под покраску и покрашенные в цвет выбранный клиентом, ламинат различных оттенков, натяжные матовые потолки, межкомнатные двери на выбор, приборы учета, сан. тех. приборы, остекление лоджии, входная металлическая дверь.

Стоимость"под ключ" : 1 631 000 рублей

Благоустройство: спортивная площадка, детская площадка, вместительная парковка, пожарная сигнализация, автономное питание и другие технологичные решения позволят с комфортом и безопасностью проживать в доме. 

Развитая инфраструктура: рядом детские сады, новая современная школа, различные магазины, гипемаркет "Лента", ТЦ "ИЮНЬ", "Аквапарк", "Ледовый дворец", остановки общественного транспорта.

Звоните!

Рассмотрим ипотеку на лучших условиях в любом банке!

Сдача дома: 3 квартал 2020 года.

Адрес

Вологодская область, Череповец, Зашекснинский район


Сеть городских порталов: Купить квартиру в Туапсе